恵比寿1丁目【大黒ビル 1階42区画】恵比寿駅徒歩1分・サービス店舗相談可
住所
渋谷区恵比寿一丁目
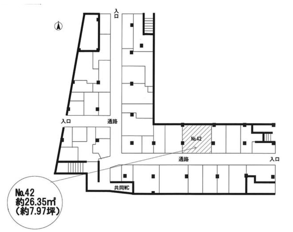
面積
26.35㎡(8坪)
賃料
賃料:
165,000円(税込)
共益費・管理費
共益費・管理費:
6,690円(税込)





恵比寿駅徒歩1分、恵比寿1丁目の昭和レトロな商店街「大黒ビル 1階42区画」のご紹介です。
本物件は、サービス店舗などのご相談が可能です。
広さは26.35㎡(7.97坪)、賃料は165,000円(税込)です。
詳細はシブテナまでお問い合わせください。
建物名
大黒ビル
住所
渋谷区恵比寿1丁目8-14
所在階
1階42区画
最寄り駅
JR山手線 恵比寿駅 徒歩1分
面積
26.35㎡(8坪)
築年
1960年
構造
鉄骨コンクリート造 地上8階建て
賃料
165,000円(税込)
/ 坪単価: 20,703円
共益費・管理費
6,690円(税込)
/ 坪単価: 839円
※協同会費
保証金・敷金
賃料の4ヶ月分(非課税)
礼金
賃料の1ヶ月分及び消費税
償却
解約時、敷金の1ヶ月分及び消費税
契約期間
2年 (定期借家)
更新料/再契約料
新賃料の1ヶ月分及び消費税(建て替えが無ければ再契約可)
入居時期
即日
用途
可能業種:サービス店舗(相談)
不可業種:飲食店
不可業種:飲食店
担当者
松本 (090-5900-4847)
備考
業務用エアコン有り
共同トイレ(ストア内)
ガス・水道無し
営業時間:AM10:00~PM20:00
維持管理費:2,000円/月
共同トイレ(ストア内)
ガス・水道無し
営業時間:AM10:00~PM20:00
維持管理費:2,000円/月
|
\ 新着!/
渋谷駅周辺のテナント物件情報