神宮前4丁目【東急プラザ表参道オモカドLOCUL 5階514区画】明治神宮前駅徒歩1分・サービス店舗・事務所
住所
渋谷区神宮前四丁目
面積
9.89㎡(3坪)
賃料
賃料:
264,000円(税込)
共益費・管理費
共益費・管理費:
11,550円(税込)



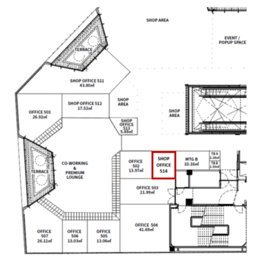
明治神宮前駅徒歩1分、神宮前4丁目の東急プラザ表参道「オモカド」5階に位置する【LOCUL 5階514区画】のご紹介です。
本物件は、サービス店舗・事務所などのご相談が可能です。
広さは9.89㎡(3坪)、賃料は264,000円(税込)です。
詳細はシブテナまでお問い合わせください。
建物名
東急プラザ表参道オモカド内 LOCUL
住所
渋谷区神宮前4丁目30-3
所在階
5階514区画
最寄り駅
明治神宮前駅 徒歩1分
面積
9.89㎡(3坪)
築年
2012年
構造
鉄骨造 地上7階地下2階建て
賃料
264,000円(税込)
/ 坪単価: 88,000円
共益費・管理費
11,550円(税込)
/ 坪単価: 3,850円
保証金・敷金
賃料の3.1ヶ月分(非課税)
礼金
無し
償却
無し
契約期間
2年 (普通借家)
更新料/再契約料
入居時期
即日
用途
可能業種:サービス店舗、事務所
担当者
矢野 (080-4153-0281)
備考
東急プラザ表参道「オモカド」内のオフィス
24時間セキュリティー
24時間利用可、土日・祝日利用可
社名表示料:5,500円(税込)
エレベーター
トイレ2箇所
オートロック
24時間セキュリティー
24時間利用可、土日・祝日利用可
社名表示料:5,500円(税込)
エレベーター
トイレ2箇所
オートロック
|
この物件のお問い合わせ
神宮前4丁目【東急プラザ表参道オモカドLOCUL 5階514区画】明治神宮前駅徒歩1分・サービス店舗・事務所
建物名: 東急プラザ表参道オモカド内 LOCUL
/ 賃料: 264,000円
\ 新着!/
渋谷駅周辺のテナント物件情報