神宮前4丁目【裏参道工房 1階】表参道駅徒歩5分・美容室・物販
住所
渋谷区神宮前四丁目
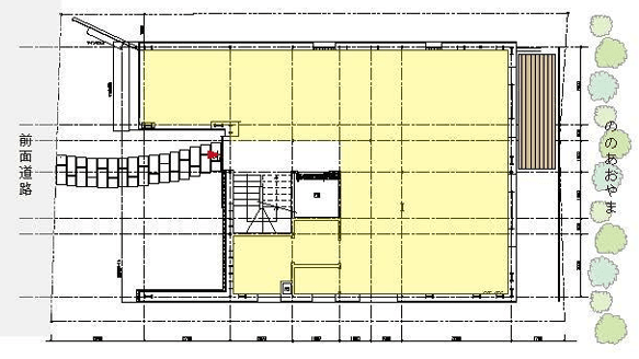
面積
69.81㎡(21.1坪)
賃料
賃料:
1,161,600円(税込)
共益費・管理費
共益費・管理費:
賃料に含む


表参道駅徒歩5分・外苑前駅徒歩8分・明治神宮前駅徒歩10分、神宮前4丁目に位置する「裏参道工房 1階」のご紹介です。
本物件は、美容室・物販・飲食などのご相談が可能です。
広さは69.81㎡(21.12坪)、賃料は1,161,600円(税込)です。
詳細はシブテナまでお問い合わせください。
建物名
裏参道工房
住所
渋谷区神宮前4丁目1-22
所在階
1階
最寄り駅
表参道駅 徒歩5分、外苑前駅 徒歩8分、明治神宮前駅 徒歩10分
面積
69.81㎡(21.1坪)
+ウッドデッキテラス
築年
2001年
構造
鉄骨造 地上3階建て
賃料
1,161,600円(税込)
/ 坪単価: 50,000円
共益費・管理費
賃料に含む
保証金・敷金
賃料の10ヶ月分(非課税)
礼金
賃料の1ヶ月分及び消費税
償却
賃料の1ヶ月分及び消費税
契約期間
3年 (定期借家)
更新料/再契約料
税込新賃料の1ヶ月分
入居時期
2026年6月上旬
用途
可能業種:美容室、物販、飲食
不可業種:飲食(アルコールのみは不可)
不可業種:飲食(アルコールのみは不可)
担当者
矢野 (080-4153-0281)
備考
スケルトン渡し
ガス有り
ガス有り
|
\ 新着!/
渋谷駅周辺のテナント物件情報