神宮前3丁目【IJK神宮前れい 1階+3階】明治神宮前駅徒歩7分・カフェ
住所
渋谷区神宮前三丁目
面積
32.7㎡(9.9坪)
賃料
賃料:
660,000円(税込)
共益費・管理費
共益費・管理費:
無し






明治神宮前駅徒歩7分、神宮前3丁目に位置する「IJK神宮前れい 1階+3階」のご紹介です。
本物件は、カフェ希望、その他業種は要相談となります。
広さは32.7㎡(9.89坪)、賃料は660,000円(税込)です。
詳細はシブテナまでお問い合わせください。
建物名
IJK神宮前れい
住所
渋谷区神宮前3丁目20-3
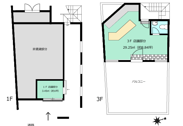
所在階
1階+3階
最寄り駅
明治神宮前駅 徒歩7分、表参道駅 徒歩10分
面積
32.7㎡(9.9坪)
1階:3.45㎡ (約1坪)
3階:29.25㎡(約8.84坪)
3階:29.25㎡(約8.84坪)
築年
2024年
構造
鉄筋コンクリート造 地上5建て
賃料
660,000円(税込)
/ 坪単価: 66,734円
共益費・管理費
無し
保証金・敷金
1,800,000円(非課税)
礼金
賃料の1ヶ月分及び消費税
償却
敷金の20%及び消費税
契約期間
2年 (定期借家)
更新料/再契約料
入居時期
2026年4月上旬予定
用途
可能業種:カフェ希望、その他業種は要相談
担当者
矢野 (080-4153-0281)
備考
カフェ居抜き(3階)※備品は引渡時に撤去
●1階と3階は内階段では繋がっていない
●1階店舗は2026年3月末完成予定。
●1階と3階は内階段では繋がっていない
●1階店舗は2026年3月末完成予定。
|
\ 新着!/
渋谷駅周辺のテナント物件情報