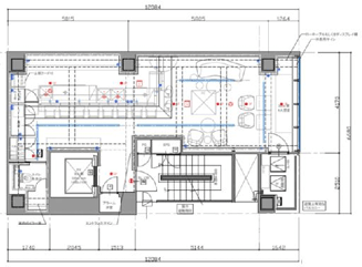
神南1丁目【パークウェイテラス 4階】渋谷駅徒歩3分・Bar・軽飲食

住所
渋谷区神南一丁目
面積
57.59㎡(17.4坪)
募集終了
この物件は募集を終了しています
最新の物件一覧へ
募集終了
この物件は募集を終了しています
最新の物件一覧へ
建物名
パークウェイテラス
住所
渋谷区神南1丁目20-8
所在階
4階
最寄り駅
渋谷駅徒歩 3 分
面積
57.59㎡(17.4坪)
築年
2022年
構造
鉄骨造 地上11階地下1階建て
担当者
本社 (03-6821-5818)
 |