東3丁目【ベルザ恵比寿 2階】恵比寿駅徒歩4分・サービス店舗・事務所

住所
渋谷区東三丁目
面積
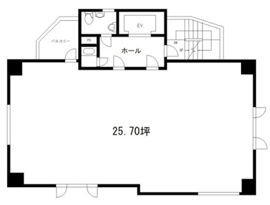
84.95㎡(25.7坪)
募集終了
この物件は募集を終了しています
最新の物件一覧へ
募集終了
この物件は募集を終了しています
最新の物件一覧へ
建物名
ベルザ恵比寿ビル
住所
渋谷区東3丁目16-1
所在階
2階
最寄り駅
恵比寿駅 徒歩4分
面積
84.95㎡(25.7坪)
築年
1980年
構造
鉄骨鉄筋コンクリート造 地上8階建て
担当者
本社 (03-6821-5818)
 |