神宮前5丁目【(仮称)神宮前五丁目ビル 1階-1】表参道駅徒歩7分・サービス店舗・クリニック
住所
渋谷区神宮前五丁目
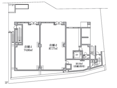
面積
74.80㎡(22.6坪)
賃料
賃料:
1,120,185円(税込)
共益費・管理費
共益費・管理費:
24,640円(税込)

表参道駅徒歩7分・明治神宮前駅徒歩10分、神宮前5丁目に位置する「(仮称)神宮前五丁目ビル 1階-1」のご紹介です。
本物件は、サービス店舗・クリニック・事務所などのご相談が可能です。
広さは74.80㎡(22.63坪)、賃料は1,120,185円(税込)です。
詳細はシブテナまでお問い合わせください。
建物名
(仮称)神宮前五丁目ビル
住所
渋谷区神宮前5丁目42-14
所在階
1階-1
最寄り駅
表参道駅 徒歩7分、明治神宮前駅 徒歩10分
面積
74.80㎡(22.6坪)
築年
2025年
構造
鉄筋コンクリート造 地上5階地下1階建て
賃料
1,120,185円(税込)
/ 坪単価: 49,500円
共益費・管理費
24,640円(税込)
/ 坪単価: 1,089円
保証金・敷金
賃料の10ヶ月分(非課税)
礼金
賃料の1ヶ月分及び消費税
償却
敷金の15%及び消費税
契約期間
5年 (定期借家)
更新料/再契約料
新賃料の1ヶ月分及び消費税
入居時期
相談
用途
可能業種:サービス店舗、クリニック、事務所
不可業種:飲食、美容室
不可業種:飲食、美容室
担当者
矢野 (080-4153-0281)
備考
スケルトン
エレベーター1基、空調無し、室内男女別トイレ
エレベーター1基、空調無し、室内男女別トイレ
|
\ 新着!/
渋谷駅周辺のテナント物件情報