鉢山町【I代官山 2階】代官山駅徒歩9分・美容室相談・サービス店舗
住所
渋谷区鉢山町
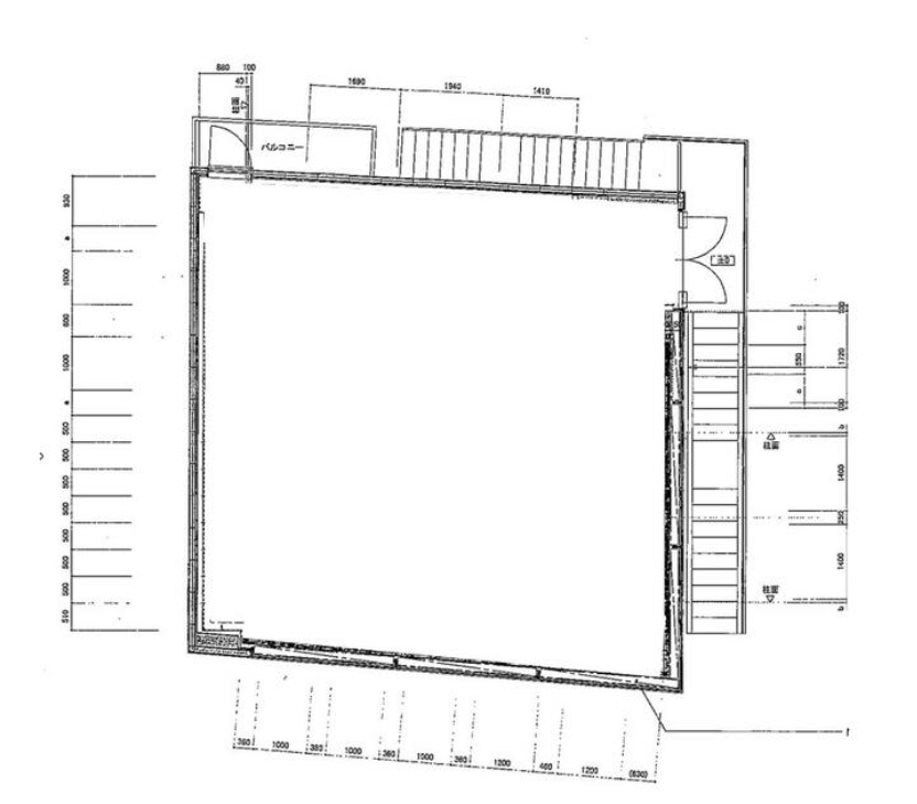
面積
82.91㎡(25.1坪)
賃料
賃料:
880,000円(税込)
共益費・管理費
共益費・管理費:
無し



代官山駅徒歩9分、針山町の旧山手通り沿いに位置する「I代官山 2階」のご紹介です。
本物件は、サービス店舗・物販店・美容室などのご相談が可能です。
広さは82.91㎡(25.08坪)、賃料は880,000円(税込)です。
詳細はシブテナまでお問い合わせください。
建物名
I代官山
住所
渋谷区鉢山町14-6
所在階
2階
最寄り駅
代官山駅 徒歩9分
面積
82.91㎡(25.1坪)
築年
2006年
構造
鉄骨造 地上3階建て
賃料
880,000円(税込)
/ 坪単価: 35,088円
共益費・管理費
無し
保証金・敷金
賃料の10ヶ月分(非課税)
礼金
賃料の2ヶ月分及び消費税
償却
退去時、賃料の2ヶ月分及び消費税
契約期間
4年 (定期借家)
更新料/再契約料
入居時期
2026年4月予定
用途
可能業種:美容室相談、サービス店舗、物販店
不可業種:飲食店
不可業種:飲食店
担当者
松本 (090-5900-4847)
備考
前テナント:海外アパレルブランド
スケルトン渡し
※現状、1階2階が室内の中階段で繋がっています。
1・2階ともに賃貸希望の場合はそのまま賃貸可能(要相談)
スケルトン渡し
※現状、1階2階が室内の中階段で繋がっています。
1・2階ともに賃貸希望の場合はそのまま賃貸可能(要相談)
|
\ 新着!/
渋谷駅周辺のテナント物件情報