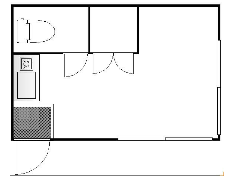
上目黒3丁目【山下ビル 401号室】中目黒駅徒歩6分・サービス店舗・事務所

住所
目黒区上目黒三丁目
面積
10㎡(3坪)
募集終了
この物件は募集を終了しています
最新の物件一覧へ
募集終了
この物件は募集を終了しています
最新の物件一覧へ
建物名
山下ビル
住所
目黒区上目黒3丁目16-5
所在階
4階
最寄り駅
中目黒駅 徒歩6分、祐天寺駅 徒歩15分
面積
10㎡(3坪)
築年
1988年
構造
鉄骨鉄筋コンクリート造 地上4階建て
担当者
本社 (03-6821-5818)
 |